The Ignorant Teacher

The Ignorant Teacher is a repository of student work completed in courses taught by Sergio Lopez-Pineiro.

Design Studios
The Immeasurable Enclosure, Basic Forms: Spheres
Theory Seminars
Experiments in Public Freedom
Directed Research
Theses
Workshops
Bangkok Sandcastles
Information
Website Terms, About Sergio
Daniel Haidermota (MArch I)
Not Quite Uncertain & Likely Imprecise

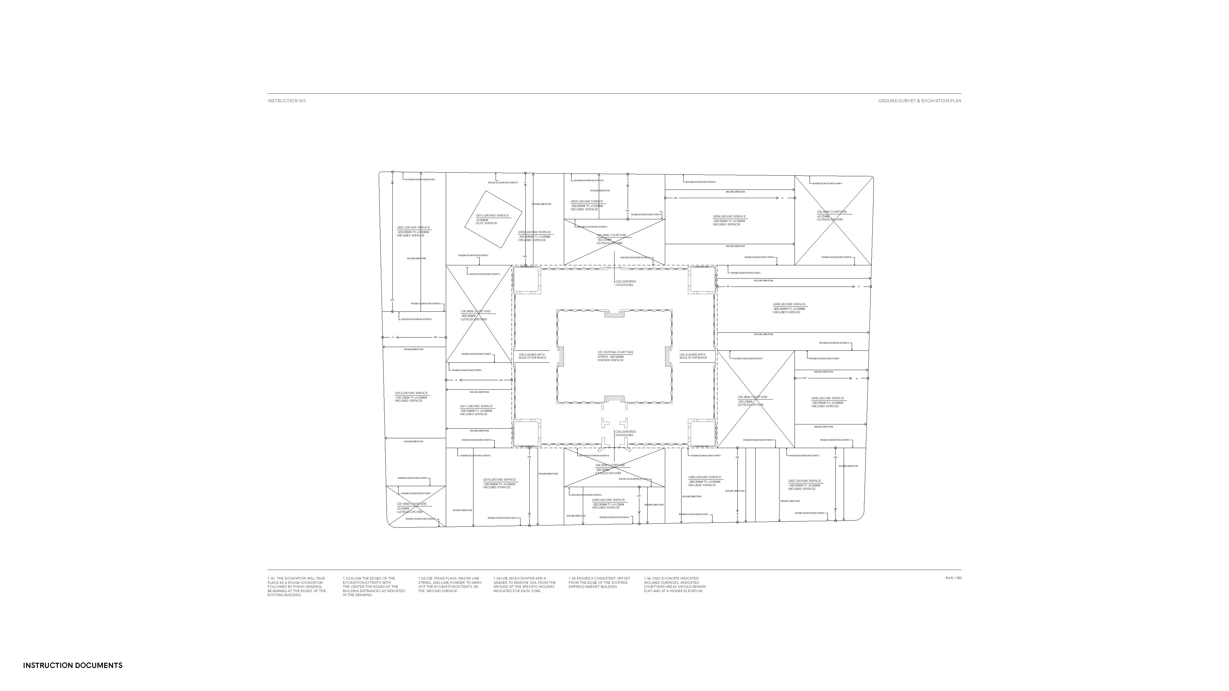
Project description.

Theses 2022