The Ignorant Teacher

The Ignorant Teacher is a repository of student work completed in courses taught by Sergio Lopez-Pineiro.

Design Studios
The Immeasurable Enclosure, Basic Forms: Spheres
Theory Seminars
Experiments in Public Freedom
Directed Research
Theses
Workshops
Bangkok Sandcastles
Information
Website Terms, About Sergio
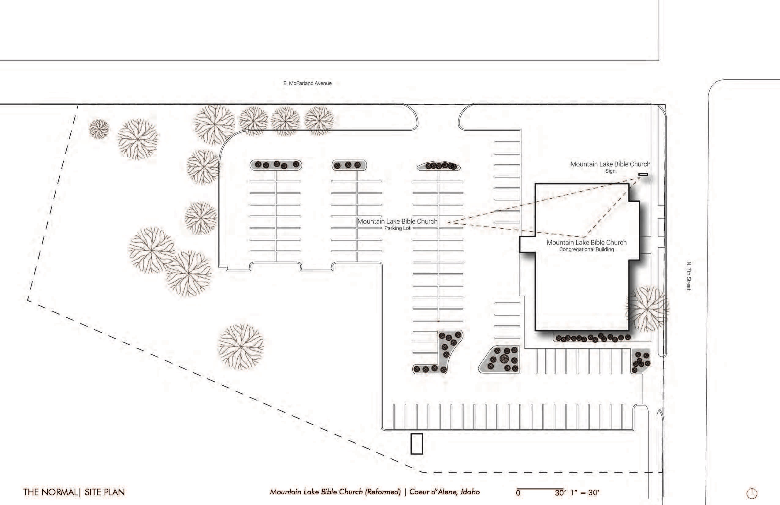
The Normal

Lorem ipsum dolor sit amet, consectetur adipiscing elit. Ut posuere in tortor in cursus. Aliquam iaculis enim sit amet diam pharetra volutpat. Etiam male.

Experiments in Public Freedom
Reformed Church Congregations
Coeur d’Alene, Idaho, United States

Student: Kira Clingen

Trash Truck 905
Alberto, Antonio, Antonio, Carlos, Javier, Israel
Mexico City, Mexico
2017 -

Student: Cynthia Deng

Apartment Pools
Miami Beach, Florida, United States


TX Dept of Transportation Highway Roadside Maintenance & Wildflower Program
Texas Department of Transportation
Texas, United States
1932

Image credits:
Page 2: Dennis Markwardt, Texas Roadside Wildflowers.


Student: Carson Fisk-Vittori